איך מתחילים לתכנן ולבנות?
טוב חברים ….
אני כותב יומן עבודה זה עבור על אלו שמעוניינים להתחיל בנייה ולא יודעים לקראת מה הם הולכים….
אשתף אתכם כאן בכל התשלומים , תהליכי הבנייה , לבטים ושאר ירקות מכל התהליך שעברנו נכון לשנת 2023
אחרי עשרה חודשי התשה של מיסים ובירוקרטיה נסגר חוזה מול קבלן שלד.
מבטיח שבסוף הבנייה אכניס עלויות בנייה מדוייקים של כל בעלי המקצוע והתשלומים שהיו בדרך וזאת כדי לתת לכם אומדן מדוייק ככל הניתן לעלויות הבנייה.
כמו כן אכניס את כל בעלי המקצוע (המומלצים בלבד) לאתר עבורכם.
אז איך מתחילים?!
אני כותב כאן בהנחה שכבר יש לכם שטח ברשותכם.במידה ואתם קונים שטח מאוד ממליץ להשכיר שירותיו של אדריכל + עורך דין.
אדריכל יבדוק לכם את התב”ע של השטח + איכות השטח מבחינת הצורה שלו , כיווני אויר ועוד
בנוסף חשוב לוודא שאין לכם עלויות פיתוח גבוהות על השטח ותוכלו לבדוק את זה על ידי בדיקה של יועץ קרקע ובעזרתנו.
תוכלו לפנות אלינו להנחיות בנושא.
עורך דין יבדוק לכם את כל הנושא המשפטי של השטח.
לא להתפשר על הנושא הזה כדי שלא תהיה לכם עוגמת נפש בהמשך.
אז דבר ראשון יש לסגור חוזה מול אדריכל/ית ,חשובים המלצות , לשוחח עם לקוחות של אותו אדריכל והכי חשובה הכימיה שלכם מולו ,מכיוון שמרגע הסגירה תהיה לכם חצי שנה עד שנה של עבודה רציפה מולו עם המון שינויים ולבטים בהמשך הדרך.
אני מדגיש! אל תתפתו למחירים זולים של אדריכלים ! לא להתפשר בנושא התכנון ! שם תקומו ותיפלו מניסיון בבתים אחרים! אדריכל טוב (וכמובן מעריך את עצמו כך ולכן המחיר שלו גבוה יחסית) יתכנן לכם בית מתואם לתקציבכם ומתוכנן בצורה נבונה לניצול כל השטח בצורה חכמה , מה גם שטעויות תיכנוניות מתבטאות בכסף! אז אמנם אתם רוצים לחסוך אבל אל תחסכו על הסעיף הזה !!!!
“תבזבזו” עוד קצת כסף וזמן על תיכנון ותרוויחו!
אז לאחר שנפגשתם עם האדריכל/לית איך תדעו האם הוא טוב או לא טוב?
או, על זה רציתי לדבר אתכם 🙂
אדריכל מומלץ
קודם כל הוא אדם שיהיה רגיש לצורככם ואתם לאחר הפגישה איתו אמורים לשאול את עצמכם את השאלות הבאות:
האם הוא שאל את השאלות הנכונות ?
האם הוא היה קשוב לרצונות שלכם במהלך השיחה ?
האם הוא האיר את עינכם לדברים שלא חשבתם עליהם ?
האם הוא עיין בדקדוק בפרגורמה שלכם? (יוסבר בהמשך המאמר) .
אדריכל טוב
- בן 30+ לפחות כלומר אחד שראה כמה דברים בחיים , שיש לו משפחה עם ילדים , כלומר בשל ובעל ראייה מפוקחת של החיים.
- כזה שיהיה זמין לכם טלפונית בכל מהלך הבנייה לשאלות והתייעצויות (כמובן לא באופן מטריד…)
- אחד שלא יגביל אתכם במתן הסקיצות עד לביצוע סופי של התוכניות.
- אחד כזה שיש לו ממליצים (מאוד חשוב! בנוסף רצוי ללכת לבקר בבתים שהוא תיכנן ולשאול את אותם ממליצים על הבית).
- יסב את תשומת ליבך לדברים שלא חשבתם עליהם כלל
- ידאג לביצוע יעיל של שלבי התכנון עד קבלת ההיתר (בגלל זה חשוב לקחת אדריכל שיש לו ניסיון מול המועצה שלכם)
- חשוב!!! שיידע להתאים את התכנון שלכם מבחינת התקציב ויידע לתכנן לפיו , שיהיה מעורה בכל נושא העלויות של בניית בית באזורכם.
- לא יהסס למסור לכם ממליצים
- יספק את כל סט התוכניות הנחוץ (אפרט על זה בהמשך)
ממליץ לכם בכל מקרה ולכל אדריכל ללכת לפחות ל2 בתים שאותו אדריכל תכנן ולבקש בנימוס מהדיירים לבוא לבקר אצלם לעשר דקות , תתפלאו כמה תובנות יש למי שכבר גר בבית לגבי התיכנון. כך תקבלו המלצה וגם הם יספרו לכם על הטעויות של אותו אדריכל בתכנון.
אדריכל פחות טוב למשל הוא זה ששואל אתכם מה אתם רוצים והולך לשרטט…
איך זה התחיל אצלנו ?
אשתי עשתה לי הפתעה…
יום אחד היא מגיעה הביתה עם סקיצה גמורה.
“מתוק , תראה מה הבאתי?”
“מה מתוקה? שוב פירקת את הכרטיס אשראי?” 🙂
“תראה את הבית העתידי שלנו…”!!!
בקיצור היא מביאה לי סקיצה של בית חד קומתי , לא סימטרי בתכנון , בקושי יש מקום לגינה , בקיצור זוועה!!!
“מאיפה הגרלת את השרטוט הזה “? אני שואל…
“הא , זאת מישהי מהמשפחה שתיכננה לחברה שלי , הנדסאית בניין , גם לוקחת מחיר טוב ותראה איזה יופי … יאללה בוא נתחיל לרוץ…”
“שניה נשמה ,hold it! …. נראה לי שאנחנו לא משדרים על אותו גל בכלל …
ראית בתים שהיא עשתה ? דיברת עם לקוחות חוץ מהחברה שלך ?
מה היא נותנת לך במהלך הדרך? ”
בקיצור מיליון שאלות פתוחות ללא מענה …!
לאחר תיאום ציפיות מול האישה ופגישה עם כמה אדריכלים שקיבלתי עליהם המלצות ובדקתי אותם אשתי הבינה שמה שהיא לקחה לא עומדת באותה סקאלה מול האדריכלים שפגשנו…”
הדבר הכי חשוב זה האדריכל , ניסיונו ומה הוא נותן לכם בכל כברת הדרך שלכם איתו (והיא כברת דרך ארוכה…..).
לא להתפשר על זה!
אני לא אומר לגשת לאדריכלים של האלפיון העליון אבל לקחת אדריכל שהוכיח את עצמו ושנכון לבית הספציפי שלכם ולבדוק אותו מול בונים אחרים דומים לשלכם שתיכנן להם בתים , לגשת לראות את הבתים ובקיצור לעשות שיעורי בית.
כמובן שבסופו של דבר שכרנו אדריכל אחר עם כל האי נעימות שבדבר.
אדריכל אמור לתת לכם לפחות שתיים או שלוש סקיצות שונות לבית (ולא אותה גברת בשינוי אדרת!),בנוסף אמור לספק לכם רשימת חזיתות , חתכים , פיתוח,אלומניום , פריסת ריצוף, תוכנית חשמל אדריכלית,רשימת נגרות ואת כל הטיפול מול המועצה המקומית והמהנדס, אפרופו מהנדס ואדריכל , עדיף לקחת את שניהם מאותו אזור ושיש להם ניסיון בעבודה מול אותה מועצה כי צריך את הקשרים בהמשך הדרך , מה גם שכל מועצה והשיגעונות שלה…
לגבי מהנדס , הוא יכול להשפיע ישירות על עלות חומרי הבניין שלכם כיוון שיש מהנדסים (הטובים) שבאמת מבצעים חישובים לעילה ולא “מפחדים” ולכן מקצים כמות ברזל לבטון בצורה מיטבית ויש מהנדסים שמגזימים בכמות הברזל ולכן עלות חומרי הבניין תהיה גבוהה יותר.
אין לכם דרך לבדוק זאת כלכך אבל יש כאן באתר המלצות על מהנדסים מומלצים ואם לא מצאתם באתר פנו אלינו ונסייע לכם, אני מכיר לא מעט מהנדסים טובים בשוק וגם מכיר כאלו שממש אבל ממש אסור להתקרב אליהם .
יש מהנדסים “מחמירים” ויש כאלו שלא… בגדול כלל האצבע מבחינת כמות ברזל לבטון הוא 100 ק”ג ברזל לקו”ב בטון אבל יש מהנדסים שמגיעים גם ל140 ק”ג לקוב בטון. התוספת למהנדס המחמיר יכולה להיות משמעותית ,באופן כללי תוספת למהנדס שהוא מחמיר יכולה להגיע אפילו ל 100000 שקל ויותר! הוא “מתפרע” וזה יכול להיות במספר גדול של כלונסאות (הביסוס של הבית שלכם) ובברזל מוגזם
שתבינו שיש הבדל משמעותי בין קוטר הברזל שהוא מגדיר לכם בתוכניות הנדסה
לקראת הפגישה עם האדריכל תבואו כבר מצויידים עם תוכנית טופוגרפית של השטח (בערך 2500 שקלים ) ותיק מידע של המועצה האדריכל מוציא בעזרת מערכת רישוי זמין… ( או רישןי לא זמין בשמו השני חח 🙂 )
לכל חלקה/מגרש בישראל יש הגדרות מדויקות כיצד ניתן לבנות בה, הכללים
מפורטים בת.ב.ע. = תוכנית בניין ערים, והם עוסקים בשאלות של כמה תוכלו “להתרחב” בשטח שלכם.
קווי בניין ,בכמה קומות ייבנה הבית שלכם ולאיזה גובה סופי הוא יגיע? האם ניתן לבנות מרתף וכ”ו
- מהו גודלו המקסימלי של המבנה במ”ר ביחס לגודלו של השטח,בדרך כלל מדובר באחוזים כגון
- כמה אחוזי הבנייה המותרים ביחס לגודלו של השטח שלכם ,האם הוא עומד בדרישות יציבות בסיסיות?
- (חישוב סטטי), האם ניתן פיתרון נאות לחנייה ובהתאמה לתוכניות הפיתוח של השכונה?
- איך הכביסה תוסתר , איזה גדרות יהיו לבית , האם חובה גג רעפים (אתיקם אני זוכר נכון ,לדוגמא ברעננה) ת האם חייבים חיפוי חוץ של אבנים (ירושליים) ובכלל האם הבית משתלב בסגנון הכללי של המבנים סביבו?
כלומר כל מועצה מגדירה את הת.ב.ע שלה בהתאם לאיך שהיא “רואה” את העיר.
כך האדריכל יוכל אפילו לשרבט לכם סקיצה ראשונית באותה הפגישה או בפגישה השנייה ותוכלו לראות אם הוא בכלל בראש שלכם.
חשוב להגיע בנוסף עם פרוגרמה שלכם.
פונקציה קריטית שחשוב לקחת עוד בטרום קנית השטח הוא יועץ הקרקע !!!!
תפקיד יועץ הקרקע
יועץ קרקע הוא אחד למד הנדסה אזרחית ותואר שני וגיאולוגיה ותפקידו לבצע סקר של הקרקע שלכם, הוא היועץ של המהנדס בנין העתידי שלכם ותפקידו להגדיר למהנדס איך הבית שלכם יבוסס ואיך כל הפיתוח של השטח שלכם יתבצע. איך הוא עושה את זה ? הוא יבקש מכם לבצע קידוח ניסיון בקרקע ולפי תוצאות חתך הקרקע הוא יקבע איך יהיה ניתן לבסס את הקרקע, להגדיר את עבודות הדיפון אם קיימות ועוד
באיזה שלב של הפרויקט משתלב יועץ קרקע?
יועץ הקרקע משתלב במערך המתכננים שלכם של הפרויקט כבר בשלב התכנון הראשוני שלו והמלצה היא להכניס אותו טרום רכישת קרקע !.
הוא נבחר על ידיכם ועובד בשיתוף פעולה מלא עם המהנדס שלכם והאדריכל שלכם.
האו הסמכות המקצועית לביסוס הבית שלכם
מה תחומי האחריות של יועץ הקרקע ?
- בחינת תכנית המדידה של האתר
- קביעת מיקום וכמות קידוחי הניסיון הנדרשים בהתאם לסוג הפרויקט
- הכנת תכנית מיקום קידוחי ניסיון
- הגדרת הדרישות לביצוע קידוחי הניסיון, כמות קידוחי הניסיון, הדיקות השדה הנדרשות (בדיקה להחדרה תקנית SPT, או בדיקת פרסיומטר) ובדיקות המעבדה
- קבלת מדגמי הקרקע וניתוח חתך הקרקע באתר
- הכנת דו”ח קרקע מפורט והנחיות לתכנון יסודות המבנה, רצפות ומתן התייחסות לנושא הניקוז בהתאם לממצאי סקר הקרקע ודרישות הפרויקט
- פיקוח עליון בזמן ביצוע היסודות ( חובה חובה מבחינתכם לוודא שגם היועץ וגם המהנדס יגיעו ליום הביסוס)
מה זו פרוגרמה?
זהו בעצם תאור כללי של הבית כלומר אלו שאלות שאתם קודם צריכים לשאול את עצמכם , לענות עליהן ואז להגיע עם כל התשובות באופן מסודר לאדריכל , כך האדריכל יתכנן לכם את הבית לשכם עפ”י האופי שלכם ולא שלו…
כמובן יש להגדיר לאדריכל מסגרת תקציב שהוא חייב לתכנן על פיה ואם בקשותכם חורגות מן התקציב הוא חייב ליידע אתכם.
אז מהם השאלות???
- שרותי אורחים: היכן למקמם? או נכון יותר היכן לא למקם אותם?
- חדר עבודה : האם בני הבית עוסקים בעבודה משרדית ? האם מקבלים קהל ? האם יש צורך בכניסה נפרדת ? מיקום מועדף ?
- מרתף רוצים ?: מהו הגודל ? עבור מה ישמש ? האם יש לכם דרישות מיוחדות ? האם יש צורך בכניסה חיצונית ?
- מחסן : לאילו שימושים ? קנוי או בנוי ? גודל ?
- חניה: האם מקורה : לכמה מכוניות ? דרישות מיוחדות ?
- האם יש צורך במקום אכסון רב בתוך הבית ? אילו סוגי אכסון ?
- האם קיימים תחביבים בעלי צרכים למיקום כגון פסנתר,סטודיו לציור,שולחן ביליארד, ציוד סקי , גלישה ועוד.
- חדר שירות: מה הוא יכיל (מכונת כביסה ,מייבש ,ארון שירות , כיור כביסה ) ? בסמיכות לאיזה איזור רצוי שהוא ימוקם (מטבח , חדר רחצה כללי )? היכן נאספת הכביסה ? היכן תיתלה הכביסה ?
- חדרי שינה הילדים: מס’ חדרי ילדים (גם עתידי)? גודל רצוי ? מה צריך להיות בחדר (טלוויזיה , מחשב , רהוט מיוחד)? האם יש צורך בחדר רחצה צמוד ?
- חדר רחצה כללי : האם דרוש כיור אחד או שניים? מקלחון או אמבטיה ?
- חדר שינה הורים: גודל מיטה זוגית ? האם יש צורך בפינת איפור ? טלוויזיה/פלזמה ? האם יש צורך בחדר ארונות או ארון ?
- סלון : האם ישמש לאירוח בלבד או גם לפעילות משפחתית ? האם יהיה אח /קמין ? האם תהיה טלוויזיה/מקרן /או אחר ? האם תהיה מערכת שמע ?
- מטבח: האם אתם בשלנים ? האם המטבח עתיר ציוד ? היכן אוכלים בני הבית? האם יש צורך באי? האם המטבח יהיה פתוח לסלון ? פתוח חלקית ? סגור ?
- חדר אוכל : האם משמש רק לאירוח ? האם יש צורך בחדר סגור או פתוח ? לכמה אנשים הוא מיועד בשגרה ולכמה במצב מקסימאלי?
- חדר משפחה : לאילו צרכים ישמש חדר המשפחה ? (קריאה,משחקים,טלוויזיה) האם חשובה הקרבה למטבח ? האם חשוב הניתוק מאזור האירוח ?
- חדר רחצה הורים : מקלחון או אמבטיה ? ג’קוזי ? כיור אחד או שניים ? דרישות מיוחדות ?
- חדר ארונות הורים : דרישות מיוחדות ?
- ממ”ד : לאיזו פונקציה הוא ישמש (חדר שינה , חדר אורח , משרד ,מזווה)? היכן הוא ימוקם ?
- האם קיים ריהוט שיעבור איתכם לביתכם החדש ? האם הוא דורש מקום מיוחד ? אם כן, יש להעביר את המידות לאדריכל.
- אופן חימום /קירור רצוי : מזגן ? אח ? חימום תת ריצפתי ? הסקה מרכזית
- מערכות מיוחדות : חשמל חכם ? שואב מרכזי ?
- דרישות נוספות : יש לרשום בסעיף זה את כל הדרישות שלא ניתן להם ביטוי עד כה.
- האם אתם מעוניינים להצמיד חדרים מסויימים ? לדוגמא: חדר משפחה ליד מטבח או חדר עבודה ליד הכניסה.
- באיזו מידה יש לדאוג להפרדה בין חדרי הילדים להורים ?
- האם אתם מארחים הרבה? (מסיבות,ארוחות,התכנסויות בינוניות).
- האם מארחים בחוץ או בפנים בדרך כלל ? עד כמה צריכה להיות הפרדה בין שטחי האירוח לשטחים הפרטיים?
- כיצד תתבצע חלוקת הפונקציות בקומות? יש לפרט את השימושים בכל קומה.
- האם יש לכם העדפות לגבי סגנון הבית? צורת הגג? חלונות? מרפסות? חיפוי באבן/טיח/שיש או אחר?
- העדפות להפניית הבית (שמש, אור ,אוורור,גודל פתחים) ?
- האם יש לכם העדפות בנוגע לגינה (גודל, כיוונים, סגנון)?
זהו פחות או יותר ,אתם צריכים להכין שעורי בית לקראת הפגישה עם המתכנן וכך תקבלו תיכנון שתואם את הצרכים האמיתיים שלכם
ממצ”ב פרוגרמה לדוגמא
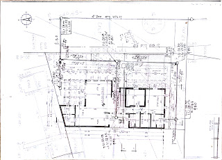
לאחר שסגרתם וישבתם עם האדריכל הוא אמור לשבת אתכם עד קבלת סקיצה סופית ומוסכמת על ידכם (לא מעט פגישות ותיקונים לעיתים) ואותה להעביר לתוכנית גרמושקה שזוהי תוכנית הגשה למועצה.
מהי תוכנית הגשה בכלל ?
זוהי תוכנית מודפסת שמכילה את כל נתוני השטח ובהית שלכם.
תוכנית ההגשה חייבת לכלול בתוכה מספר שרטוטים:
- מפה טופוגרפית שנערכה על ידי מודד מוסמך עד חצי שנה ממועד הבקשה, בקנה מידה של 1:250, כאשר המפה הטופוגרפית מורכבת מתרשים סביבה שמראה את מיקומו של המגרש ברשת קואורדינטות ארצית, ומפה מצבית שמראה את כל השטח ממבט על כולל נקודות גובה, גבולות המגרש, וכל פרטי הסביבה עמודי חשמל ותאורה, צמחייה, דרכים, וכל מה שנראה ממבט על, בתוספת חץ צפון, קנה מידה קווי ופרטי המודד.
- התוכנית כוללת תשריט ערוך בקנה מידה לכל קומה. בקומת הקרקע מסומנים גם כניסות, משטחים מרוצפים, שבילים, מדרגות, חניות ועוד. בקומת הגג ניתן לראות את שיפוע הגג, דודי שמש, אנטנות ורכוש משותף.
- בתוכנית מפורטים לפחות שני חתכים בקנה מידה של 1:100 לאורך ולרוחב המבנה, וכן חזיתות המבנה.
- תוכנית פיתוח מוצגת בקנה מידה של 1:250, והיא כוללת כבישים, שבילים, מדרכות הגובלים בחלקה, מבנים הגובלים לחלקה, גדרות, שערים, חניות, ניקוז, ביוב ומים תשתיות של בזק וחברת החשמל בלוני גז, חדר הזבל וגובהם של כל המפלסים.
תוכנית ההגשה בנוסף כוללת מספר טפסים:

- הטופס הראשון מפרט את תיאור הנכס – כתובת, גוש, חלקה, ופרטים מלאים שכוללים את שמו, כתובתו ומספר הזהות של בעל הנכס, עורך הבקשה (האדריכל), ומתכנן השלד (קונסטרוקטור).
- תיאור הבקשה כגון בנייה חדשה, תוספת בנייה, מגורים, תעשייה, מסחר, מספר יחידות דיור, מספר הקומות, שטחים להריסה. שטח המגרש ואחוזי הבנייה המוצעים בו.
- הטופס השני מפרט את סוג הבנייה לדוגמה בנייה מתועשת, בנייה רגילה ועוד. בטופס זה מצוינים חומרי הבנייה לדוגמה בטון, בלוקים, עץ וכדומה.
- הטופס השלישי הוא לשימוש הלשכה המרכזית לסטטיסטיקה ובו מפורטים סוג המבנה, ייעודו, שטח המבנה מספר הדירות, מספר החדרים ועוד.
- הטופס הרביעי מחולק לשני חלקים. החלק העליון כולל פרוט של השטחים (המוצעים על ידי מבקש היתר הבנייה), השטחים העיקריים (שטח הדירה) ושטחי השירות (חדרי מדרגות, חנייה, מחסנים, ממ”ד ועוד). הפירוט הוא לכל מפלס (קומה) בנפרד. החלק התחתון מפרט את זכויות הבנייה שקיימות בתוכנית בניין עיר, כלומר השטח הכולל שטח עיקרי פלוס שטח שירות לפני אישור ההקלות. בתחתית הטופס מופיעים החתימות של עורך הבקשה (לרוב, האדריכל), בעל הזכות בנכס ומתכנן השלד (לרוב מהנדס).
תצטרכו לשלם 1000 שקלים בערך לפתיחת תיק במועצה ואז יוצאים לדרך (ותכינו את החשבון בנק שלכם).
תצטרכו להחתים את האדריכל + מהנדס על התוכניות הגשה.
לאחר שהגענו אני ואישתי לקראת סקיצה די סופית רציתי לבצע הדמייה תלת ממדית לבית , לקחתי מספר הצעות מחיר שנעו בין 1500 שקלים להדמייה חיצונית בלבד ל-5000 שקלים …!
אני חצי עירקי וחצי תימני אז באותו רגע החצי התימני השתלט עלי ואמרתי שאני לא מוכן לשלם כזה סכום על הדמיה ולכן אני עושה אותה לבד!!!
הורדתי Google SketchUp 8 למחשב ,ביקשתי מהאדריכלית שלי מידות מדוייקות של כל חלקי הבית , הורדתי 2 דיסקים של וידאו DVD ללימוד התוכנה ותוך שבוע הבית שלי נבנה בצורה תלת מימדית כולל חוץ ופנים !!!
אתם יודעים מה זה לתימני לחסוך 5000 שקלים?!
סתם… ההדמייה הזו גרמה לנו לבצע שינויים הן במפתחי החלונות , צימצום חלונות בבית (אל תתנו לאדריכל שלכם “להתפרע” עם כמות וגדלי החלונות בבית ,זהו חלק משמעותי בתקציב שלכם אז חבל…. .),
ראו דוגמאות מההדמייה שעשיתי
חדר הורים
פינת ישיבה – חוץ
מבט למטבח מהסלון
מבט מכיוון דרום
חזית מזרחית
חזית כוללת
אצלנו היו 32 חלונות בתיכנון המקורי שירדו לאיזור ה-23 בסוף. חיסכון של עשרות אלפי שקלים…..
בקיצור תבנו בהיגיון , אני גם לא בניתי מרתף משיקולי תקציב , העדפנו להשקיע את הכסף על הקומה העליונה מה גם שאישתי לא מוכנה לשמוע על דיירים אז עניין התשואה מהשכרה ירד מהפרק .
במידה ואתם בונים מרתף תקחו בחשבון הוצאה לא מבוטלת של הוצאה על חפירה , בטון,איטום,אינסטלציה… ולא לשכוח שאתם צריכים גם לבצע עבודות גמר למרתף …
הכל עניין של תקציב .אז כמו שכתבתי , לאחר שהגעתם לתוכנית הרצויה והסופית ,פתחתם תיק במועצה , יש לסגור חוזה מול מהנדס בניין (עלות :60 שקל למ”ר ) יכול להיות יותר אם יש בריכת שחיה ועוד אלמנטים שיכולים להשפיע על עלות המהנדס ,אני “העמסתי” על המהנדס גם הכנה של תוכנית סאניטרית שהיה לו אופציה במשרדו לבצע (יועץ אינסטלציה עולה בערך 2500-3500 ש”ח, פנו אלינו לקבלת הטבה לקהילה שלנו בחלק זה ).
מה עוד חשוב לסגור בשלב התכנון?
- מעבדת בטון להיתר – גשו למעבדת איסוטסט וקבלו מחיר שלנו עבור הקהילה! הטוב ביותר . תצטרכו את המעבדה לכל תהליך הבניה . תוכלו לקרוא על הבדיקות כאן
- יועץ אינסטלציה להכנת נספח סמניטרי
- תקציב בניה וכתב כמויות עבור תמחור כל שלב בתהליך התכנון כדי שלא תחרגו
- יועץ בריכה במידה ויש
- יועץ בטיחות במידה ויש בריכה
- יועץ מיגון (לא תמיד)
- יועץ תנועה (לא תמיד)
עלות בנית בית פרטי
קחו בחשבון את העלויות הבאות (לא כולל מע”מ) :(לבית סטנדרטי של 200 מטר בשתי קומות.(מחירים אמיתיים לבית שהסתיים 2023)(למרתף מתווספת עלות של 50 אלף שקלים רק בשלד בערך שזה ) ולגמר עוד סכום לא מבוטל. עלות תוספת מרתף של 100 מטר בערך היא בממוצע בין 600 ל 700 אלף שקלים קומפלט ( בהנחה שאין עבודות דיפון יקרות ואז המחיר יכול לעלות ליותר מזה)
שלד 620000
טיח – 180000
אלומיניום 125000
חשמל תלוי אזור ומחירי יחידות כלומר עלות נקודות , 68000
אינסטלציה – 78000 , עלות נקודה כיום נעה בין 1400 ל 1800 שקלים
דלתות – 30 , תלוי בכם כמובן , דלת פנים ממוצעת 1200-1600
איטום – 42000
מטבח – 55000
חימום תת רצפתי במים 48000
ספי חלונות – 170 שקל למטר רץ
מדרגות – 35 (בערך 390 שקלים למדרגה)
ריצוף – 250 שקל למ”ר עבודה + חומר שחור + הריצוף עצמו , לבית הזה עלה לנו כל הריצוף חומר ועבודה כ 154000 שקלים
רובע וניקיון פנים – 5000 ,( 25 שקלים לרובע למטר )
חיפויים – חיפויי קיר עלות של 150 שקלים למטר + 100 שקלים למטר עבודה.
סניטריה + מקלחונים – 25000 , תלוי בכם
דוד שמש – 5500 שקלים
מזגנים – 43000
אינטרקום – 4500
בסוף הבנייה מבטיח לפרסם את כל הקבלנים המומלצים והמחירים האמיתיים שלי בהמשך הדרך. אני פחות או יותר מתכוונן בהתאם.
מוזמנים להגיב ולהעיר,
הירשמו לערוץ שלנו כדי לקבל עדכונים ישירות מהשטח ובכלל
אז מה היה לנו עד היום
עורך דין – 10K
תשלום חלקות שטח למינהל – שטח של 350 מטר – 90 אלף ש”ח כולל מע”מ
3, מס רכישה – 2700 שקל
תוכלו לבדוק כאן מה עלות האגרות שלכם
סגירת אדריכלית(מהממת ותותחית) שתיכננה לנו את הבית
הוצאת תיק מידע עבור האדריכלית – בעצם כמה מותר לבנות על השטח – האדריכלית מוציאה בעזרת מערכת רישוי זמין
הפקת מדידה טופוגרפית עבור השטח – לנו לא עלה אבל העלות היא בערך 2500 שקלים.
לאחר סגירת תיכנון ניגשים לבצע תקציב בניה מקצועי ורק אז נותנים אישור לאדריכל להכין גרמושקה להגשה עבור עירייה , בזק,הוט , הג”א וחברת חשמל. כולם בהגשות ציבעוניות , בלינק תקבלו מחירים ללא תחרות שלנו
במידה ומנצלים את כל ההקלות של העירייה (עד 6% ) מהשטח יש צורך לבצע פירסום בעיתונות -בשלושה עיתונים ,ידיעות/מעריב.הארץ (אחד מהם ),עיתון יומי ומיקומון , לאחר ביצוע הפירסום (לוקח שבוע לקבל את גזרי העיתונים בדואר)יש לתלות הנוסח שמתקבל מהעירייה ו”לתלות” אותו בסמוך לשטח , לצלם אותו ולהגיש לעירייה , העירייה מצידה שולחת מכתבים רשומים לכל מי שגובל בשטח שלכם כדי לקבל הסתגויות מהשכנים , במידה ולאחר שבועיים לא התקבלו שום הסתגיות הצילום עובד לתיק שלכם להמשך טיפול.מצרף לכם טלפון של עיתון מעריב לביצוע הפירסום , בזמנו הם היו הזולים ביותר 035632338. עלויות: 450 ש”ח לפירסום בעיתון + 74 ש”ח לרשות המקומית למכתבים הרשומים …. והכסף ממשיך לצאת מהכיסים…
תוכניות ממתינות לאישור הגופים השונים ובניהם וועדה של העירייה , לאחר וועדה ראשונה מתקבל גיליון דרישות אינסופי שצריך למלא אותו להגשה לוועדה שנייה ברשות המקומית (צירפתי לכם קובץ כדי שתראו פחות או יותר מהן הדרישות (לפחות אצלנו,כל רשות וה”שריטות” שלה).
הגשה למינהל מקרקעי ישראל עבור אישור שלהם – זמן ממוצע , שלושה חודשים , לאחר שהעירייה חותמת לכם על הגרמושקה לאחר מילוי כל דרישות הועדה אתם מגישים שלושה עותקים בשחור לבן כשאחד מהם חתום ע”י העירייה (אל תשכחו לצלם!!!) למינהל , המינהל מבחינתו מעביר את התוכניות שלכם כמה מדורי גיהנום בתוך המשרדים שלו מאחד לאחר עד לחתימה סופית ,אני לקחתי מישהו בתשלום שיקדם את הנושא ובאמת אחרי כחודש היה לי אישור מינהל , במידה והייתי עושה את זה לבד אני לא יודע כמה זמן היה לוקח לי , אני הייתי אמור לשלם תוספת חריגה של 15000 שקלים (בנוסף ל-90) על חריגה של 20 מטר וכן , מחשבים גם ממ”ד במינהל(ואין לכם מה להתווכח אלא אם כן בא לכם להצמיח עוד כמה שערות לבנות…או לבזבז עוד זמן יקר בעירעורים…), אני וויתרתי על התענוג המפוקפק.
תשלום לתאגיד המים – 23000 שקלים , אצלי מדובר בבית נטו של 170 מטר , ברוטו 200 מטר (כלומר + ממ”ד , מחסן ושאר ירקות שלא נחשבים בחישוב) התאגידים הולכים לקראת האזרח ו”מקלים” עליו ולכן חישוב התשלום לתאגידי המים מחושב לפי גדול ברוטו כלומר ה כ ל כולל חדר מדרגות אז קחו זאת בחשבון .
בדיקת בטונים דרך איזוטופ/איזוטסט – עלויות לפי מספר הבדיקות , ממוצע עלות 3000 שקלים.
הסכם פינוי פסולת – טופס לאישור לעירייה שקיים אישור הטמנת פסולת- עלות: בנושא זה יש מערב פרוע , אני שילמתי 750 שקלים , היו הצעות שקיבלתי שהגיעו גם ל-3000 שקלים , תבקשו מהמהנדס שלכם , הוא בטח מכיר .
עדיף לכם לסגור מול אתרי האיחסון ישירות ולא מול קבלני חומרי הבניין מכיוון שכשאתם סוגרים מול קבלני חומרי הבניין הם משלמים לאתרי האיחסון בעצמם והם “סוגרים” אתכם מולם מה שאומר כשתצטרכו לפנות את פסולת הבניין שלכם תצטרכו לעשות זה אך ורק מולם! כלומר משאית שלהם והכל דרכם , ברגע שתסגרו ישירות אז אתם אדונים לעצמכם ותיקחו איזה משאית שבא לכם במחירים הזולים ביותר שתשיגו , אני עשיתי טעות , אמנם לא טעות גדולה אבל חבל , תחסכו עוד כמה שקלים על הדרך.מצורף לכם רשימת אתרי אחסון , תורידו אותה מכאן
תשלום היטל השבחה – 55000 שקלים.
תשלום אגרת בנייה – 12600 שקלים.(תלוי בגודל הבית ובמועצה , כל מועצה והתעריפים שלה)
קבלת היתר היה כשבוע לאחר תשלום כל המיסים.
מודד לסימון מתווה – 1700 שקל כולל מע”מ
זהו תהליך קבלת ההיתר בגדול
קחו בחשבון המון פגישות/טלפונים ועבודת רגליים לרשות המקומית כי יש להם יכולת מופלאה לאבד מסמכים.
קחו בחשבון שזמן קבלת היתר משלב סקיצות ועד ההיתר הוא בממוצע בסביבות שנה !
ראשית ,צלמו הכל!!!!
כיום עם הרישוי זמין זה פחות בעיה כי הכל במחשב אבל עדיין שמרו תיעוד להכל!
אצלי זה התחיל “כשהתקשרו אלי ואמרו שאיבדו את הפירסום שלי , לפקידה פשוט לא היה כח לחפש בתיק , הגעתי ומצאתי בשבילה את המסמכים.
אתמול התקשרו אלי שאיבדו את כל התיק בנייה – לאחר חיפושים נמצא לאחר שלוש שעות בארכיון (כי התיק חולק לשניים בגלל גודלו ולא היה להם מושג מזה…).
בנוסף לאחר מעבר על התיק נודע לנו שאיבדו את הגרמושקה שחתומה ע”י המהנדס והאדריכלית מה שמצריך ממני להדפיס שוב את הגרמושקה , להחתים שוב את המהנדס + אדריכלית ולהביא אותה לרשות המקומית , החזר אני אראה מהם אולי בגילגול הבא …
בכל מקרה את ההצעות לקבלן השלד התחלתי לקבל כבר לפני חודשיים.
טיפ: בצעו תקציב מקצועי ובשלב המכרז גשו לקבלן כבר נתוני כמויות מדוייקים לבית שלכם כולל סכום תקציבי שאתם מבקשים ממנו לעמוד בו, בשיטה הזו יש סיכוי לחסוך והרבה! מניסיון !
לקחתי 5 הצעות כולן מקבלנים רשומים , בשביל כך יש לצלם להם גרמושקה + תוכניות עבודה , ביקשתי מכל קבלן לקבל הצעה לכולל חומר והצעה לעבודה בלבד. כמובן כולל גדרות וחניה.
כל קבלן שלד בדרך כלל מחזיק בביטוח קבלני , בבקשה מכם ודאו זאת מול הקבלן!
חשוב מבחינתכם לבצע ביטוח קבלני משלכם! יש לנו שת”פ עם מחירים וכיויס ללא תחרות עבורכם!
חשוב לבצע לפני תחילת השלד ולא אחריו !!!!
הביטוח תקף לשנתיים !
לגבי קבלן רשום , חלק מהבונים מתפתים לסגור עם קבלן שאינו רשום , מציע לכם לא לעשות זאת כי במקרה של בעיה לא תהיה לכם אפשרות לתבוע אף אחד (אלא רק את עצמכם)
הייתם משכירים חשמלאי ללא רישיון ?
הייתם מרשים לנהג להסיע את ילדכם ברכב כשהנהג ללא רישיון נהיגה ?
לקחת מהקבלן את מספר הרישיון שלו ? אל תסתפקו בזה , פיתחו אינטרנט ותכניסו את המפסר כדי לבדוק האם אכן המספר תקף…
https://www.moch.gov.il/rasham_hakablanim/Pages/pinkas_hakablanim.aspx
במידה ואתם סוגרים עבודה + חומר תגדירו במדויק אלו חומרים , בלוקים (איזה בלוקים?) , קלקר , ניילון (כפי שאפרט בהמשך) ותנסו להעמיס על הקבלן גם פיתוח. במידה ואתם סוגרים עבודה בלבד תסגרו אותה כנ”ל כולל גדרות וחניה + פיתוח.
מכל קבלן תבקשו לפחות 4 טלפונים לאנשים שהוא בנה להם ותבקרו באתר ותשוחחו עם האנשים , תבררו על טיב הקבלן , אמינותו וכ”ו.
הצעות שקיבלתי נעו בין 540 אלף לבין 730 אלף לא כולל מע”מ . אבל כיוון שהיה ברשותי תקציב וכמאות ידעתי בדיוק מהם הסכומים פחות או יותר שאני אמור לקבל !
רוב הקבלנים העדיפו לעבוד בצורה של עבודה בלבד. לגבי עבודה המחירים נעו בין 150 אלף ל- 230 אלף לא כולל מע”מ.
בסוף לאחר המלצות + ביקורים באתרים + שיחה עם הקבלן בחרתי בקבלן שעלותו היתה בערך באמצע הטווח.
הקבלן יהיה אחראי על הקמת השלד כולל גדרות ופיתוח. בנוסף הוא יהיה אחראי על הכנות לצנרת מיזוג , ביטון משקופי דלתות , בנוסף הקבלן גם התנדב לבצע זיגוג של מדרגות פנים הבית גם מלמטה.
דרך אגב ,לקחתי גם 2 הצעות מקבלני מפתח , שניהם באיזור 1500000 אלף לא כולל מע”מ ולא כולל מטבח (גם לא גדרות) , יקר בסביבות 15 אחוז מבנייה עצמית… במידה ואתם לוקחים מפקח אז העלות די זהה בין מפקח לקבלן מפתח
בחתימת החוזה הוכנס מפרט טכני שיגדיר לקבלן בדיוק מה שאני רוצה. מצורפים כל הנקודות שהכנסתי למפרט הטכני.
חשוב להוסיף מספר מילים (וגם טיפים) על אופן ארגון וניהול המסמכים שלכם :
סופרפוזיציה
ברגע שתקבלו מהאדריכל שלכם את סט התוכניות האדריכליות קודם כל תעברו עליהם בקפידה רבה ככל הניתן כדי לוודא שאין טעויות אקוטיות ,לאחר שביצעתם וראיתם שהכל תקין תבצעו הצמדה לתוכנית המהנדס כדי לראות שאין עמודים ש”נופלים” במקומות שבהם הם לא צריכים להיות (האדריכלית אמורה לעשות את זה אבל תגדילו ראש ותעשו גם אתם) , תקפידו לבדוק בעיקר את מיקומי האסלות כדי לוודא שהצנרת לא נופלת על עמוד תמך ולעיתים גם המרחק מהקיר החיצוני הוא גדול מידי מה שמצריך שיפוע גדול מה שיכול ליצור בעיות , במידה וזיהיתם מצב כזה יש להעיר תשומת לב של מהנדס האינסטלציה + אדריכל
למשל כך נראית תוכנית ביוב
שבוע הבא אני נפגש עם מהנדס ביוב של אחת הערים הגדולות ואעלה מאמר מפורט רק על תוכנית ביוב , טיפים , טעויות שיש להימנע מהם וכדומה. שווה להירשם באתר כדי שבזמן שאפרסם את המאמר אעדכן אתכם.
שוב.
טוב אז לאחר שעברתם על הכל האדריכלית שולחת להדפסה (בצבע) חמש גרמושקות (בערך 1200 שקלים , זה משתנה ולכן תבצעו סקירה של 2-3 מקומות באזור מגורכם לבירור עלות.
לאחר אישור וועדה ראשונה ושניה האדריכלית תוציא לכם להדפסה סט תוכניות עבודה עבור קבלת הצעות מחיר מהקבלנים , תוודאו שסט זה יכיל את כל החזיתות + תוכניות אדריכליות + תוכניות מהנדס + תוכניות חשמל.
מדובר בכ-13 הדפסות בגודל של A2 , לאחר שביצעתם הדפסה תבצעו צילום שלהם בכמה עותקים (עלות צילום זולה יותר) , תכינו קלסר עבודה שבו תתייקו את כל תוכניות העבודה המקוריות.
בנוסף בקשו מהאדריכל את כל סט התוכניות + גרמושקה בפורמט PDF (לצפייה) ובפורמט PLT (להדפסה).
במידה ותצטרכו לשלוח להדפסה אז לא תצטרכו להיות תלויים באדריכל ….
טיפ: לא לצאת לבניה ללא סט סגור קומפלט כולל הכל מהכל!!!!
מה כולל הסט שחייב להיות ברשותכם ממש לקראת יציאה לבניה בקנה מידה של 1:50
- דוח קרקע
- תוכניות מהנדס
- תוכניות אדריכל
- גרמושקה סניטארית
- תוכנית אינסטלציה
- תוכנית מטבח
- תוכנית נגרות
- תוכנית מיזוג
- תוכנית פיתוח שטח
- תוכנית אדריכלות נוף ( מומלץ!)
- תוכנית בית חכם ומתח נמוך
אל תנסו לשלוח את קובץ הPDF במייל למכון ההעתקות מכיוון שהם לא יוכלו להדפיס לכם אותו , אתם חייבים לספק להם את קובץ ה-PLT. PLT זהו קובץ שתוכנת האוטוקד מפיקה אותו בצורה מקודדת עבור מדפסות.
נקודה חשובה – בקשו מהאדריכל 2 קבצי גרמושקה . אחד בשחור לבן ואחד צבעוני. כשתצטרכו להדפיס גרמושקה ותשלחו למכון קובץ צבעוני אז… חבל על הכסף שלכם … תשלחו תמיד בשחור לבן וצלמו.
אז לאחר שהקלסר שלכם מוכן ואתם מתחילים למסור את תוכניות העבודה שלכם לקבלנים (שלד + חשמל + אינסטלציה + איטום (למי שיש מרתף בלבד) . ) אתם תקבלו חזרה את תוכניות העבודה שלכם בצירוף הצעת המחיר כמובן לאחר שהקבלן יישב אתכם .
ארגנו את כל ההצעות מחיר בקובץ אקסל מסודר + שמות + טלפונים + תאריך שליחת התוכניות וקבלה שלהם . תמיד יהיה איזה קבלן מנ… שלא יחזיר לכם לא את התוכניות ולא ייתן לכם הצעת מחיר…
עכשיו… סדרו את כל קבצי הפרויקט שלכם עפ”י נושאים בתוף תיקייה מסודרת במחשב , למי בימינו אין אייפון ? אנדרואיד? אני חושב שכמעט לכולם …. אפילו האחיינית שלי בת ה-7 משגעת אותי שאקנה לה אייפון….
אני בתור ילד התעסקתי רק עם קופסאות אשל …;-)
בכל מקרה המכשיר שלכם ישרת אתכם נאמנה בכל תהליך הפרויקט…
כדי שהוא יתפקד ככזה עקבו אחר ההוראות הבאות 🙂
הורידו אפליקציית דרייב למכשיר.
הורידו אפליקציית דרייב למחשב האישי שלכם בבית.
הורידו אפליקציית camscanner למכשיר.
הסבר
דרייב – אפליקציית “ענן” שביכול כל הקבצים שאתם רואים במכשיר נמצאים בכונן וירטואלי שמשוייך למייל שלכם , התיקייה ששמרתם במחשב האישי שלכם מסונכרנת לאינטרנט ולמכשיר שלכם. בעצם כל קובץ ששמרתם בתיקיית הפרוייקט שלכם יסונכרן הן לאינטרנט והן למכשיר שלכם. כלומר בכל מקום שתלכו כל פרטי הפרויקט שלכם יהיו אתכם בכל מקום…. תוכלו לשלוח להדפסה ברגע , כשתקנו אריחים תוכלו לשלוח למוכר את פריסת הריצוף שלכם , אין צורך להתסובב עם קלסר , הכל בנייד שלכם , פשוט ונוח …!
אפליקציית camscanner מאפשרת שלכם לסרוק את המסמכים החשובים לתיקיית הפרוייקט שלכם (תיקיית dropbox) אתם זוכרים ? ברגע שתשמרו שם המסך יהיה זמין גם דרך הנייד שלכם…
באפלקיצייה מאפשרת בעצם לצלם מסמך , להתאים אותו בגודלו כאילו סרקתם אותו בסורק ולבצע לו export בתור קובץ PDF ישירות לתיקיית הפרוייקט שלכם.
מעכשיו כל הצעות המחיר , כל התוכניות , כל המסמכים החשובים שלכם “יתויקו” בתיקייה ש”תלך” אתכם לכל מקום… את הדפים כמובן תתייקו בקלסר בבית לשמירה .
לאחר שסגרתם עם כל בעלי המקצוע הרלוונטיים קרי שלד , חשמל ואינסטלציה מלאו דף קשר ומסרו אותו לקבלן השלד שלכם ושמירו בתקייה שלכם.
דבר אחרון , ממליץ לכולם להקליט את כל השיחות שלכם במהלך הבנייה… לי כבר יצא להתשמש בכמה מההקלטות…. ואין הוכחה טובה יותר לכל בעל מקצוע או עסק ….
עם כל ההמלצות שלי מבטיח לכם שבכך תהיו יעילים הרבה יותר. מה גם שתגידו גם שלום לקלסר הכבד והמעיק…
טיפ חשוב נוסף!!!!
חלק מהבעיות בשטח הם תוכניות לא מעודכנות שהקבלן משתמש בהם…
העלו לדרייב שלכם את התוכניות המעודכנות ביותר ושתפו אותם עם הקבלנים השונים, ברגע שיש עדכון של תוכנית החליפו את התוכנית הקיימת בחדשה בתיקייה . כך תמיד הקבלנים יעבדו עם התוכנית המעודכנת ביותר!
מקווה שעזרתי . ללא טכנולוגים שבניכם אני זמין במייל במידה ותצטרכו עזרה .
ותזכרו לאורך כל הבניה או השיפוץ – מה שלא כתוב לא קיים !!!
מצורפים דגשים חשובים לקבלן השלד שלכם
- לפני סגירה עם קבלן השלד לפנות לייעוץ הנדסי מחברת רדימיקס דרכנו להגדרת מפרט הבטונים לקבלן השלד !!! פנו אליהם מכאן ויהב מנהל הסקטור הפרטי יחזור אליכם ! מאוד חשוב !
- הקבלן יחתום על חוזה העבודה לאחר שקרא ובדק את כל התוכניות וכן את הנספחים, התנאים והדגשים והוא מסכים ומחויב לצבע את כולם.
- חתימה על תוכניות העבודה+הרמוניקה+תוכניות קונסטרוקציה מהווה התחייבות לבצע את כל מה שמופיע בהן (תוכניות האדריכלות, ההנדסה, מפרטים ונספחים). יתכנו שינויים בבניית קירות הפנים או גודל ומיקום פתחי חלונות ופתחים בבית ללא תוספת מחיר.
- הקבלן מקבל את השטח כפי שהוא זמן חתימת החוזה וממצב זה של השטח עד לגמר השלד והפיתוח הוא אחראי לביצוע כל העבודה.
- הקבלן מחוייב לבצע את כל העבודה לפי תוכניות העבודה עליהן הוא חתום ואין הוא רשאי לשנות ולו את הפרט הקטן ביותר ללא יידוע של מזמין העבודה ואישורו למעט שינויים שאושרו ונחתמו ע”י מזמין העבודה בלבד.
- הקבלן שמקבל את העבודה מהמזמין הוא גם הקבלן המבצע בפועל ולא ימונה תחתיו קבלן משנה בצורה כלשהיא.
- על הקבלן המבצע לסלק כל חומר שהוא חפר או הוציא או קיים מתחום המגרש למקום שפיכת פסולת מאושר (כולל פינוי פסולת קיימת בזמן קבלת המגרש).
- הקבלן ראה את השטח ובחן אותו וכל קושי שייווצר נלקח על ידו בחשבון.
- הקבלן הגיש בהצעתו מחיר לעבודת בניית השלד והפיתוח פאושלי בשקלים.
- המחיר שניתן עבור העבודה כמצויין בהסכם זה כולל את בניית שלד הבית לפי תוכניות ומפרט אדריכל, בניית משטח החניה ופינת הישיבה הצפונית על כל פרטיו, בניית גג מבטון, כל עבודות הבידוד והאיטום ע”פ פרטים, כל עבודות הפיתוח המופיעות בתכניות האדריכלות לרבות יציקת בטון של חצרות ושבילים, בניית 3 גרמי מדרגות בפיתוח, בנייה והגבהה של גדרות בכל היקף המגרש עפ”י דרישת מזמין העבודה ובהתאם לתוכניות.
- הקבלן אחראי לשמור על המתווה במצב תקין עד להשלמת רצפת 0.00 ולתקנו ככל שיידרש לפי הנחיית המפקח
- יש לקבל את כל המידות מהאדריכלית ויש לבדוק שהם אכן תואמות לבנייה בשטח
- מריחת טיט בבלוק תהיה על כל הדפנות(גם האמצעיות) ולא רק על החיצוניות
- לא יותר השימוש בשברי בלוקים ובבלוקים המונחים על צידם.
- יש לוודא שבשורת הבלוקים האחרונה יהיה בלוק שלם על ידי חישוב הגובה וחלוקתו ב 21 (גובה בלוק + מישק), עם גובה החגורות ניתן “לשחק” להתאמת גובה הקיר עם בלוקים שלמים.
- הקבלן יתחיל את עבודות הביסוס רק לאחר שמזמין העבודהמהנדס אישר לו את עומק חפירה .
- על הקבלן לגדר את האתר לפני תחילת העבודות בגדר מפח בגובה 2 מטר לפחות , על הקבלן לאחסן את החומרים שהובאו לאתר- בין אם הובאו על ידו ובין אם הובאו ע”י המזמין – בהתאם להוראות שניתנו לו על ידי המזמין. הקבלן לא יהיה רשאי להוציא כל חומר אשר הובא לאתר בלי רשות מיוחדת ובכתב מטעם המזמין.
- כל החזר מילוי שיידרש לצורך השלמת פיתוח ,עקב עבודת השלד או פיתוח (לתחתית האדמה הגננית) לכל המפלסים (מינוס 15)..
- לא תתבצע בניית בלוק על תקרה באופן ישיר אלא ע”י יציקת בטון 40 ס”מ גובה בשלב הראשון(גם אם לא מופיע בתוכנית המהנדס).
- יבוצע כל קידוח בור חילחול כולל חצץ שידרש ע”י המהנדס (חלחול) ללא תוספת במחיר
- כל נזק שייגרם בפיתוח הסביבתי כתוצאה מכל עבודה שהיא בזמן בניית השלד והפיתוח, יתוקן באחריות ובמימון הקבלן. אותו כנ”ל לגבי נזק במגרשים שכנים. (גם פינוי חומר עודף שטרם פונה). המזמין רשאי לשלם חשבונות אלו ולקזז אותם מתשלום חשבון השלד של הקבלן.
- ידוע לקבלן כי הבית יבנה על כלונסאות בקוטר 50 ס”מ בהתאם לתוכנית מהנדס. הקבלן יבצע את עבודות הקידוח והבניה בכלונסאות 50 ס”מ. מוסכם כי בסיום עבודת הקידוח יערך סיכום של עומק הקידוחים והיציקות שבוצעו בפועל
- על הקבלן לדאוג לסדר ונקיון תמידי בבניין, לכל אורך שלבי הבניה.\
- על הקבלן להגדיל את פתחי הדלתות ב 2.5 ס”מ מכל כיוון כך שלאחר התקנת המשקוף עיוור פתח הדלת יישאר בגודל הפתח בתוכניות האדריכליות.
- במידה ומזמין העבודה או האדריכל עוצר את העבודה בבניין מכל סיבה שהיא – על הקבלן להפסיק מיד.
- כל עבודה שתעשה ללא שביעות רצון מזמין העבודה – תתוקן מיד לאלתר.
- הקבלן יישא באחריות טעות במידות שלא לפי תוכנית, אלא אם כן מזמין העבודה אישר לו.
- במידה ואין פרט לעבודה מסויימת בתוכניות, יודיע על כך הקבלן למזמין העבודה. מזמין העבודה ידאג להשלים את הפרט החסר בהקדם כפי שיפורט ע”י האדריכל המהנדס ודינו כמו כל פרט בתוכניות שנחתמו ע”י הצדדים ועל הקבלן לבצען, ללא כל תוספת תשלום.
- המזמין ידאג לאספקת חשמל לאתר והוא גם אחראי לספק חשמל לקבלני המשנה. המזמין ידאג לספק חשמל זמני לאתר כמה שיותר מהר.
- הקבלן לא ייצוק שום אלמנט לפני הודעה למזמין העבודה למהנדס. היציקה תתבצע רק על פי אישור המהנדס.
- בסיום יציקות הבטון , קירות פנים יגולחו מברזלים ובליטות בטון ויהיו מוכנים לטיח.
- קירות המחיצות הפנים ייבנו מבלוק שחור 10 ס”מ תקני .
- תיבנה חגורות בטון מעל ומתחת לפתחים, יבוצעו חגורות מעמוד לעמוד, גם אם לא צוין כך בתוכניות העבודה. בניית טפסנות לחגורות עליונות ותחתונות יהיו רק לאחר יומיים לאחר בניית הקירות כדי לוודא ייבוש הטיט. כל החגורות יכללו לפחות 4 ברזלי 8 מ”מ מצולע, אשר יוחזקו בברזל חשוק סגור, הכל לפי דרישת המפקח וגם אם לא צוין כך בתוכנית העבודה. בחלקי קיר בין פתחים סמוכים שהמרחק ביניהם קטן מ- 50 ס”מ, יבצע הקבלן במידה ויידרש על ידי המפקח, יציקת בטון במקום בלוקים.
- כל הבטונים יהיו מסוג 30 שקיעה “7 יכיל לפחות 400 ק”ג צמנט למ”ק ויתאים לדרישות ת”י 466 חלק 1 לבטון יצוק במים בשיטת טרמיאו אחר לפי דרישת המהנדס.
- את הבטון יש לצקת ברציפות ללא הפסקות. על הקבלן לארגן את רציפות האספקה ואת הציוד וצוות הפועלים הנדרש
- לא תהיה יציקה ביום בו חזוי חמסין או גשם אלא אם יוכיח הקבלן שנקט בכל אמצעי הזהירות למניעת נזקים
- יש להשתמש במרטטי מחט או שטח בכל שלבי היציקה . על הקבלן להחזיק באתר מרטטים כשירים לפעולה במספר מספיק שיבטיח רציפות עם סיום כל יציקה ישטוף הקבלן את כל מוטות הזיון שצופו או לוכלכו בבטון יש לרטט את הבטון עם ויברטור לעומק 3 מטר עליונים לפחות. יציקת היסודות תעשה מיד עם סיום הקידוחים ועם משאבה בלבד.
- כל הבטונים ליציקות השונות יהיו ממפעל מאושר והקבלן לא יבצע יציקות באמצעות בטון שהוכן בשטח, ולו גם בכמויות קטנות בשעת היציקה יהיו באתר 2 ויברטורים תקינים.לא יבצעו יציקות בימי שישי וערב חג. יציקת יסודות, קירות, רצפות, עמודים ותקרות, תעשה עם משאבה בלבד. יציקה ביום הקידוח.
- יציקת הגג תתבצע ביחד עם המעקות באותה יציקה. לא תותר לקבלן האפשרות לצקת את המעקות בנפרד מהגג. מובהר בזאת כי המעקה יבוצע מבטון כולל שקע עבור עבודות איטום.
- יציקת הקירות תעשה באמצעות לבידים (דיקטים ) חדשים. במרחב המוגן תוצאת היציקה חייבת לעמוד בדרישות הבטון החשוף כפי שמוגדר במפרט הכללי. הקבלן יבצע החלקה במלג’ של כל התקרות/ רצפות לאחר היציקה לשביעות רצון המפקח.
- במידה והיו בדיקות סוניות או אחרות ליסודות לאחר יציקתן עלות הבדיקה על המזמין. במידה והקלונסאות לא מתאימים עלות התיקון לפי דרישת המהנדס יחולו על הקבלן.
- הקבלן מתחייב בסיום יציקת רצפה 0.15- להוציא תוכנית התאמה של רצפה ראשונה ע”י מודד.
- הקבלן יבצע יציקות לכל הגגות בשיפוע ביטון של 0.5% לכיוון המרזבים (מים עומדים לא יתקבלו).
- יבוצע כיסוי לגשרי קור ע”י קלקר אדקס 2 ס”מ בלבד לכל הבטונים הגלויים בשלד. אשפרת הבטון בהשקיה יומיומית במשך שבוע לאחר היציקה באחריות הקבלן.
- צינורות שונים , שרוולים , כבלים לחשמל וכו’ יורכבו בבטונים בזמן היציקה בהתאם למסומן בתכניות המתאימות. על הקבלן לדאוג לתאום מעבר מערכות לפני ביצוע היציקה . הרכבת האביזרים הנ”ל כלולה במחירי היחידה ואינה נמדדת בנפרד
- בכל עבודות הבטון יהיו כלולים בהם גם עשיית כל החורים למיניהם עבור הפתחים, דלתות, אביזרי אינסטלציה, צנרת, חריצים, מגרעות, שקעים ותעלות למיניהן. באלמנטים בהם צויין שהתבניות נמדדות בנפרד הרי התבניות לסוגיהן יכללו במחירן את כל הנ”ל. כמו כן סידור וחיזוק לתבניות של כל הפריטים הדרושים למערכות השונות, משקופים וכו’ שיהיו מבוטנים ומעוגנים בתוך הבטון.
- כל הברזלים אשר דרושים לביצוע העבודות יהיו ממחסן מאושר בתו התקן.הברזל יהיה נקי מחלודה , יאוחסן בצורה נאותה על משטחי עץ ותתבצע אספקה במספר הובלות עפ”י שלבי הבנייה.הקבלן מתחייב להשתמש בשומרי מרחק בהכנסת הקלונס לבור.קוצים להארקת יסוד יהיו עם ריתוך אנכי בלבד.
- 48 שעות לפחות לפני כל יציקה של רצפה תקרה יסודות או עמודים יודיע הקבלן למזמין וכן למהנדס לפי העניין , והוא לא יבצע את היציקה הנדונה ללא קבלת אישורים כדלקמן בדרך של רישום ביומן העבודה: לפני יציקת יסודות- אישור של המהנדס.לפני יציקת תקרות ורצפות- אישור של המהנדס.לפני יציקת עמודים וחגורות- אישור של המזמין.אישור מהנדס מתכן לא יהווה אישור סופי ליציקה , לא תבוצע כל יציקה ללא אישור חתום על ידי המזמין בדרך של רישום ביומן העבודה:
- הקבלן יהיה האחראי להזמין את נציגי מעבדת מכון התקנים לפני כל יציקה שבה נדרשת בדיקת בטון והוא לא יהיה רשאי לצקת במידה ונציג המעבדה לא הגיע לשטח . בכל מקרה שלא נדרשת בדיקה מטעם מעבדה מאושרת, הקבלן יוכל לצקת ללא בדיקת המעבדה אולם יהיה חייב להמציא את תעודת המשלוח של הבטון למפקח או למזמין.
- כל העמודים יבוצעו על ידי שטראובות (שינניות הקבלן יניח לפני היציקה ברזל זיון אופקי כל 20 ס”מ לתוך השטראובה , הכל גם אם לא סומן כך בתוכניות.יציקת כל העמודים בכל אחד מהמפלסים תבוצע בפעם אחת לכל מפלס.
- מחיצות הפנים יבוצעו על ידי בלוק 10 ס”מ שחור נושא תו תקן. הקבלן יבצע שורה ראשונה לאישור המפקח ו/או האדריכל. הקבלן יבצע חגורות למחיצות פנים בהתאם לתוכניות העבודה ו/או בהתאם לדרישת המפקח אשר יכללו לפחות 4 ברזלי 8 מ”מ מצולע ויחוזקו בברזל חשוק סגור. במפגש בין מחיצה לקיר מעטפת תבוצע יציקת בטון לרבות קוץ זיון כל 20 ס”מ בהתאם לדרישת המזמין.כל חגורות הבטון מתחת ומעל לחלונות יהיו 20X20 , 20X10X מעמוד לעמוד בטון +ברזל.
- גובה תחתית משקוף ממ”ד מרצפת הבטון יתואם עם האדריכל ויהיה לא פחות מ-15 ס”מ.
- בכל מקום בו עובר צינור 4″ בתוך קיר המבנה, יבצע הקבלן עמוד דמי בהתאם להנחיות המפקח , גם אם אינו מופיע בתוכניות.
- גם אם לא מופיעה לכך דרישה מפורשת בתוכניות, יבצע הקבלן סף הפרדה לרוחב כל פתחי היציאה מהבית ולרוחב פתחי חדרי האמבטיה והמקלחת. הסף יבוצע מבטון יצוק במקום
- במקומות בולטים יבוצע על פי הנחיות שינתנו לקבלן במקום, אף מים גם אם אינו מופיע בתוכניות.
- הקבלן יבצע פתחים למערכת מיזוג, בהתאם להנחיות ופרטים שימסרו במקום ע”י המזמין ו/או המפקח ובתיאום עם המהנדס ככל שהדבר יהיה דרוש.
- בפתחים בתוך קירות בנויים, ייוצב המשקוף ע”י הכנסת קצה הקיר לתוך שקע המשקוף ומילוי הרווח הנשאר לכל הגובה בבטון.הצבת המשקופים תעשה תוך כדי הקפדה על גובה, כשהם מיושרים על מוט ואנך, תמוכים בפני סטיה מהאנך וממוקמים בתוך הקיר כך שבין פני המשקוף לפני הטיח ישאר רווח לפחות 15 מ”מ אם לא צויין אחרת בתוכנית. יש להקפיד באופן מיוחד על מילוי שקע המשקוף במלט. בכל מקרה שמילוי המשקוף לא יהיה מלא, יהיה על הקבלן לפרקן ולהרכיבו מחדש על חשבונו.הצבת 2 משקופים או יותר בקיר אחד תהיה מיושרת בקו אחיד ולא תורשה כל בליטה או סטיה מהקו.
- ביטון משקופים עוורים אינם נמדדים ונחשבים ככלולים במחירי היחידות האחרות. הבטון צ”ל עם חומר אטים נגד רטיבות.
- תחת כל קירות הבניה המונחים על מרצפי הבטון וכן בכל מקומות של מגע הקירות עם קירות חוץ יש ליצור פס מריחה של 2 שכבות טורוסיל כדוגמת תוצרת חב’ “כימאדיר”. כל העבודה הנ”ל תיכלל במחיר הבניה ולא תשולם בנפרד.
- המזמין יספק נקודת מים . עלות המים בזמן הקמת השלד תהיה על חשבון המזמין .
- הקבלן חייב להגן על חלקי עבודות בין אם בוצעו על ידו ובין אם בוצעו על ידי קבלנים אחרים, ובמיוחד כאשר קיימת סכנה כי עבודות המבוצעות על ידו עלולות לפגוע באותן חלקי עבודות.
- במידה ויהיה צורך בפיגום כשלהוא הוא יסופק ויורכב על ידי הקבלן או איש מטעמו ועל חשבונו של הקבלן, והקבלן יהיה אחראי לכך כי מרכיב הפיגומים יהיה מומחה להרכבת פיגומים.
- הקבלן יהיה אחראי לתיאומים עם בעלי המקצוע השונים שלוקחים חלק בעבודות השלד , ובכלל זה קבלן האינסטלציה , החשמל , האיטום, המסגרות, וכל קבלן אחר שיהיה בו צורך לביצוע שלד המבנה. שמות קבלני המשנה, כתובתם ומספרי הטלפונים שלהם ימסרו לקבלן על ידי המזמין.
- על קירות שלד הבטון מבפנים לפני בניית הבלוקים תתבצע מריחת גלאנץ. כמו כן לכל שקעי ארגזי התריס.
- הבידוד בכל חלקי הבית יהיה פולריטאן מוקצף 5 ס”מ, כולל שקעי ארגזי תריס.
- על הקבלן לנקות את כל שאריות הבטון, הטיט וכל עצם לא רצוי אחר מהמרפסות, על מנת לתת משטח חלק לקבלן האיטום (כולל מתחת לשורות האבן הראשונות בכל היקף הבית).
- על הקבלן לרכוש ולהניח את צינור השרשור עפ”י פרט ניקוז כפי שמופיע בתוכניות
- במידה והקירות או התקרות לא יהיו ישרים – באחריות הקבלן ליישרם.
- כל היציקות בבניין יבוצעו אך ורק ע”י משאבת בטון , ובטון ממפעל מאושר מסוג ב – 300 או ב – 400 (בפרגולות) מסוג “עדס” בלבד ללא “פולייה” , הכל כמופיע בתוכנית הקונסטרוקציה.
- הקבלן מחויב להניח עמודי ברזל קוטר 12 מצידי כל פתח בקירות ומצדי כל צינור “4 העובר בקירות וכן כל איפה שמופיע בתוכניות ההנדסה.
- ביצוע נישות ומעברים לבעלי המקצוע השונים לפי דרישת המזמין ואו האדריכל.
- הקבלן יבנה נישה לבלוני גז ליד הגדר החזיתית כמפורט בתכניות .
- כל הפרגולות יבנו מבטון , עבודה נקייה, כמפורט בתוכנית האדריכלות, התבניות יהיו חדשות עם פינות 45 בגמר של בטון לבן חלק וחשוף. הבנייה הקונסטרוקטיבית תהיה או עם עמודים או כקונזול הכל בהתאם לתוכניות. כל פרט אדריכלי והנדסי מבחינת חומר וציוד מקובל על הקבלן ללא תוספת מחיר. עמודי הפרגולה והקורה החיצונית יצופו אבן – בהתאם לפרט אדריכל.
- התאמת הנישה של ארגז התריס לפי דרישת מתקין האלומניום וציפוי הגלאנץ.
- המזמין יספק את כל אביזרי הממ”ד דור חדש מתוצרת פלרז דלת רוחב 80 (יותר רחבה!) בעצמו ועל חשבונו לרבות דלת ממ”ד, חלון ממ”ד, צינורות אוורור, התקן עומר בהתאם לתוכניות ולתקן מאושרות ע”י הג”א
- אספקה והתקנה של “אפי מים” (משולשים או מרובעים) לפי דרישה וצורך בכל אלמנט בן ידרוש מזמין העבודה והאדריכל.
- לפני כל יציקה בין בטון לבטון תתבצע שטיפה וחשיפת הבטון עליו רוצה הקבלן לצקת בטון חדש.
- איטום רצפות ראשונות יהיה מארגזי פוליביד לפי תוכניות ההנדסה והאדריכלות כולל אספקה של מצע מהודק. האיטום יבוצע על ידי המזמין ו/או מי מטעמו למעט האיטום שלגביו נאמר במפורש במפרט זה כי יבוצע על ידי הקבלן. הקבלן יבצע את כל עבודות ההכנה לאיטום, לרבות הכנת השטח ויציקת בטון רזה. הקבלן מתחייב לכסות את ארגזי הקלקר/כוורת בכיסוי ניילון שתי שכבות.
- הקבלן ירכוש ויניח ויהיה אחראי לצינורות הניקוז לכיוון הצינור השרשורי ויבנה להם תחתיות מבטון.
- כל עבודות הבטון בפיתוח יהיו עפ”י תוכנית מהנדס ולא תהיה ממנה כל סטייה.
- הובא לידיעת הקבלן פרט גרם המדרגות (משוננות בחלקן התחתון) בתוך הבית והוא יבנה אותן במדוייק ובהתאם לתוכניות והנחיות האדריכל.
- ידוע לקבלן כי יתכן ויבוצע חיבורשינוי בצורתם או גודלם של החלונות במטבח, בחדר הורים ובחלל הגג. כל עוד השינוי הוחלט לפני בניית האלמנט הקבלן יבצעו ולא יקבל על זה תוספת מחיר
- יבוצע ע”י הקבלן אספקה והתקנה של צינור “5 למייבש כביסה בחדר הכביסה הצפוני.
- הלשד יימסר למזמין העבודה נקי ומטוטא. מבחוץ מפלסי הפיתוח יונמכו בגובה 40-50 ס”מ מפני הריצוף הצמוד באותו מפלס בחומר מילוי נקי (אדמה מקומית). מצב השלד יהיה אחרי כוחלה ומחיצות פנים, נקי מעצים, חומרי בניין ופסולת.
זהו בגדול לשלב התיכנון , חשוב שתהיו ביחד בכל נושא התכנון , אין צורך לרוץ או למהר לבנות אלא רק לאחר שכל קצוות התיכנון סגורים.
בהצלחה!!!












